NUNGESSER

réhabilitation et extension d’une maison

1–1

  • Nungesser extension maison photo 01
  • Nungesser extension maison photo existant
  • Nungesser extension maison photo 02
  • Nungesser extension maison photo 03
  • Nungesser extension maison photo intérieur 01
  • Nungesser extension maison photo intérieur 02
  • Nungesser extension maison photo intérieur 03
  • Nungesser extension maison photo intérieur 04
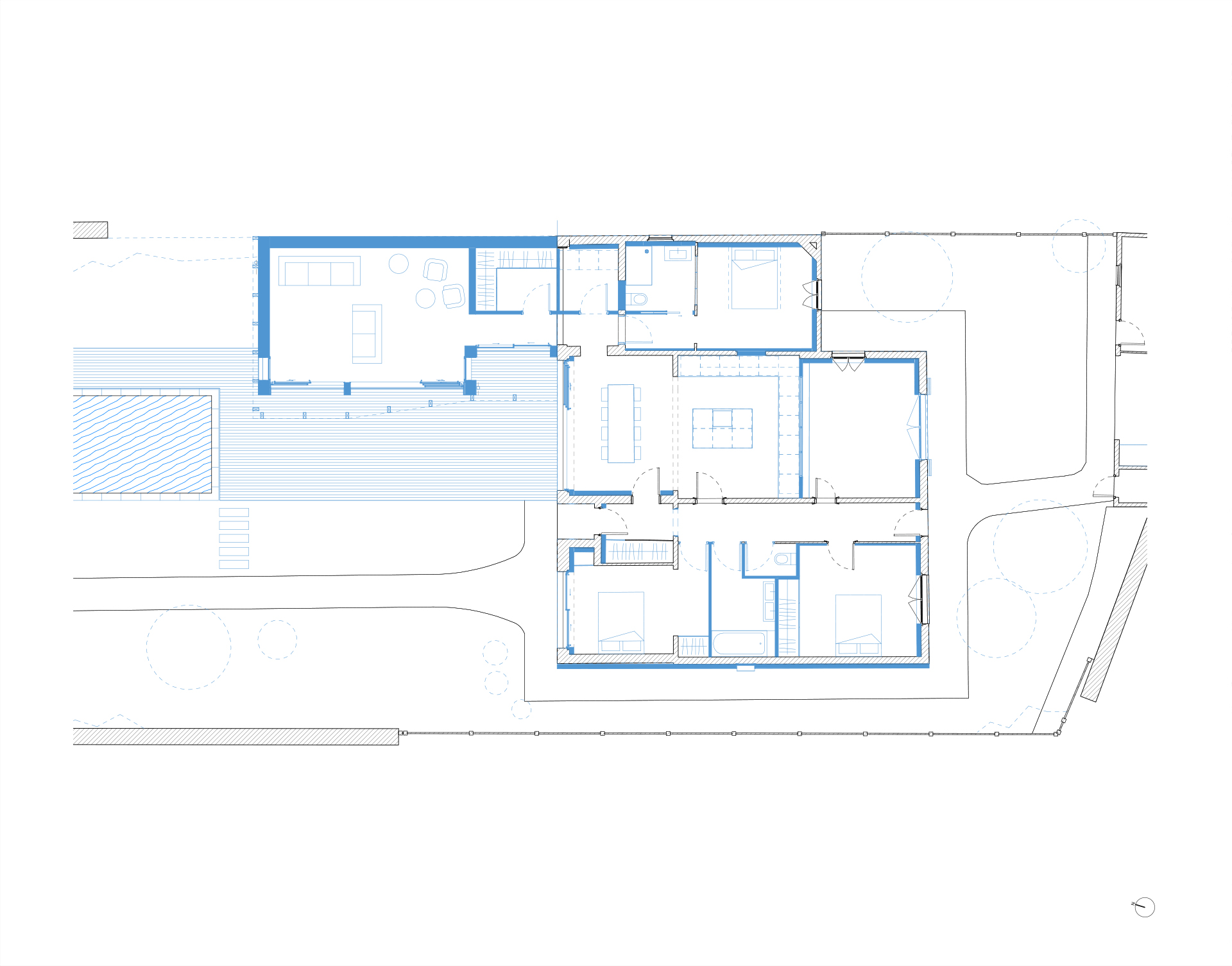
  • Nungesser extension maison plan existant
  • Nungesser extension maison plan projet
  • l’extension de cette maison s’insère avec discrétion sous l’avancée de toiture existante, préservant les jardins nord et sud. l’intérieur est repensé pour une circulation fluide et une mise en relation visuelle entre les deux jardins, tout en conservant l’identité du bâti. La terrasse créée relie et articule les espaces de vie et la piscine.

    une intervention respectueuse et fonctionnelle, où chaque espace dialogue avec la nature environnante.

     

    • Lieubègles (33)
    • StatutLivré en 2025
    • MOAprivé
    • Surface120 m²
    • BudgetNC
    • MissionConception + PC
    • Créditsimage Atelier Godet Rabecq