MIRAMBEAU

transformation d’un immeuble en cabinet dentaire, 2 logements et commerce

1–1

  • Mirambeau cabinet dentaire fauteuil
  • Mirambeau cabinet dentaire fauteuil
  • Mirambeau cabinet dentaire façade
  • Mirambeau cabinet dentaire plan existant
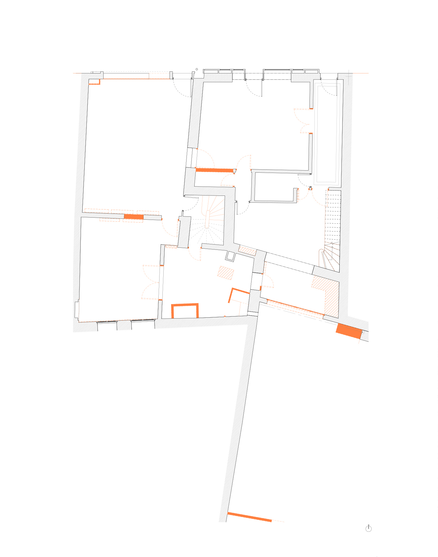
  • Mirambeau cabinet dentaire plan projet
  • Ce projet réaménage deux immeubles sur la place principale de Mirambeau pour créer un cabinet dentaire ouvert sur un jardin, un local commercial accessible et un logement locatif.

    La façade repensée et les circulations optimisées permettent une flexibilité future, tout en préservant l’équilibre entre intimité et ouverture sur la ville.

    • Lieumirambeau (17)
    • Statutlivré en 2024
    • MOAprivé
    • Surface410 m²
    • Budget500 000 €
    • Missioncomplète + opc
    • ÉquipeHenry schein / partenaire technique
      ETBA / bet structure
    • Créditsphotos Atelier Godet Rabecq