JABRUN

Aménagement de bureaux

1–1

  • jabrun aménagement bureaux bordeaux cour
  • jabrun aménagement bureaux bordeaux chantier
  • jabrun aménagement bureaux bordeaux espace travail
  • jabrun aménagement bureaux bordeaux espace travail
  • jabrun aménagement bureaux bordeaux chantier
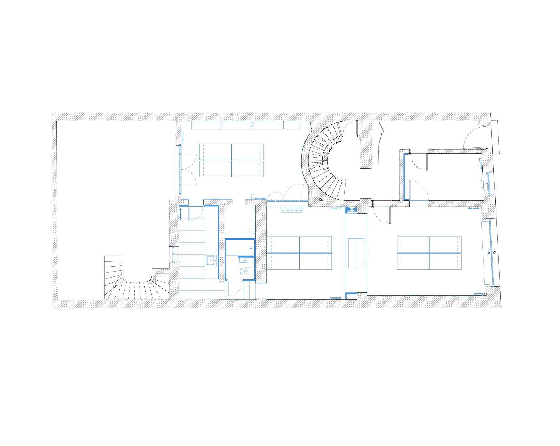
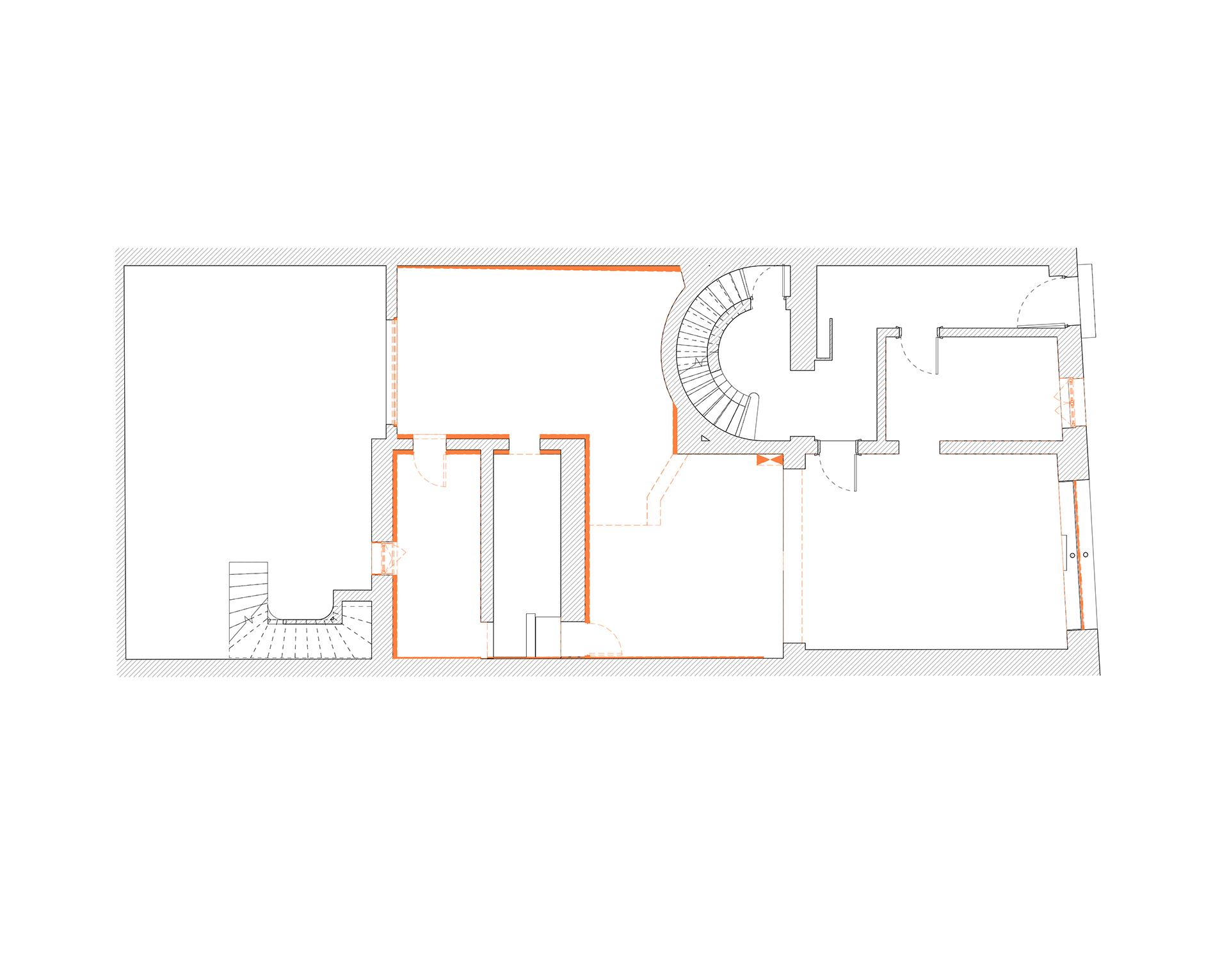
  • jabrun aménagement bureaux bordeaux plan existant
  • jabrun aménagement bureaux bordeaux plan existant
  • ce projet transforme un local historique du centre de bordeaux, situé au rez-de-chaussée d’un immeuble en pierre de taille, en un espace de bureaux épuré et fonctionnel. classé comme construction d’intérêt patrimonial courant à conserver dans le psmv, le bâtiment fait l’objet d’une réhabilitation sobre, où l’authenticité du bâti est mise en valeur par une approche minimaliste et brutale.

    l’intervention privilégie le dévoilement des structures existantes : les doublages dégradés sont supprimés, laissant apparents les murs en pierre et en brique. les doublages créés, réduits au strict nécessaire, permettent une flexibilité d’usage et une réversibilité future en logement. le sol en béton quartzé, remplaçant l’ancien parquet dégradé, renforce cette esthétique brute et contemporaine, tout en assurant une durabilité optimale.

    une réhabilitation respectueuse, où l’essentiel est laissé à nu pour célébrer la beauté du déjà-là.

    • Lieubordeaux (33)
    • Statutlivré en 2024
    • MOAPrivé
    • Surface98 m²
    • Budget120 000 €
    • MissionComplète + OPC
    • Créditsimages Atelier Godet-Rabecq